ARCHITEKTUR
  Wohnen
  Shops/Stores
  Serienhäuser
  Umgebaut
  Angebaut
  Wettbewerbe
  BÜRO
  IMPRESSUM
  KONTAKT
1  2  3  4  5
KAI SCHÜBEL ARCHITEKT
UMBAU DES GEMEINDEHAUSES FÜR DIE PROT. KIRCHENGEMEINDE / TRIPPSTADT
STEIGGASSE 4 / D-67705 TRIPPSTADT 2008
 
Ein erster Entwurf sah die Erweiterung der Nutzfläche durch einen neuen Anbau zwischen dem Gemeinde- und dem Pfarrhaus vor. Ein begrüntes Schmetterlings-Dach spannt sich zwischen die Baukörper. Ein Teil des Daches knickt ab und bildet eine neue grüne Kante zum Hof. Der Anbau wirkt leicht und transparent.
 
Eine nachträgliche Limitierung des Budgets machte einen zweiten Entwurf notwendig.
 
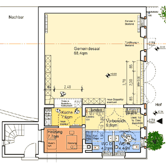
Durch eine Umstrukturierung des Innenlebens im Gebäude konnte eine kostengünstige Lösung gefunden werden, die sanitären Anlagen zu erweitern und rollstuhlgerecht auszubauen sowie die Nutzfläche der Küche den gestiegenen Anforderungen anzupassen.
 
Ein neuer Wanddurchbruch ermöglicht ein multifunktionales Thekenmöbel Richtung Gemeindesaal zu schieben. Von beiden Seiten bedienbar wird mit dem Thekenmöbel nicht nur die Bewegungsfläche in der Küche vergrößert sondern auch die gesamte Nutzbarkeit des Gemeindehauses bei Festen o.ä. verbessert. Ein Mehrwert ist entstanden.